Nordic Aluminium
Global PRO Plus+ Track System
Pro PLUS is a further development of our Pro system that allows for dynamic lighting via transmitting signals throughout the system to individual lights from smart control systems* such as DALI, DMX, LON and EIB standards.
This type of system is most suitable for store displays and shop windows. It is also used in museums and exhibitions to highlight details, and in restaurants, auditoriums, and hotel lobbies for multiply ambiance options.
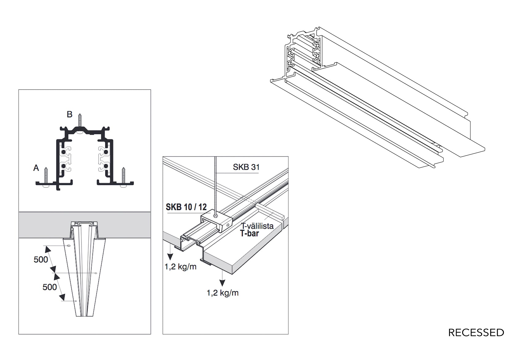
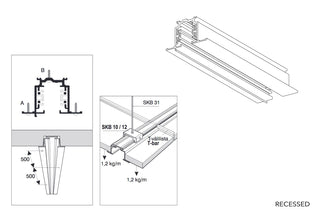
The Pro Plus track system is easy to install, allowing fixing to different constructions and surfaces. Either flush mounted or suspended. Global Pro Plus’s genuine designed electrical and mechanical connectors allow for many mounting options and layouts. Quality power feeds & connectors that ensure full connectivity over time.
Track is available in Black, White, or Grey finish and comes in 3 sizes. 1m, 2m, or 3m lengths.
Let us help you configure your track system. Email your drawings or request a site visit. We can break down a parts list based on your info and provide a quote for purchase. *Control Systems sold separately.
Track heads and pendant options sold separately.
CERTIFICATIONS
All lighting products sold by Eurolite are certified for North American installation, and are in compliance with the latest safety regulations.
This means, whether the lighting fixtures are imported from another country or custom-made in our own, we ensure they each meet all North American electrical standards through any necessary certified part modifications and an electrical inspection conducted by an accredited agency.
STOCKING & DELIVERY INFO
Stocked Eurolite website product is indicated when their is a 'quantity of pieces' noted above the cart button.
When there is no product quantity indicated - the current delivery times range from 2 wks to even 6 & 9 weeks depending on the location of the brand's warehouse.
Delivery timeline for website products vary. We will contact you directly within 24-48 hrs of you order to advise.
Online check-out can only be complete if your order is for pick-up at our downtown Toronto location OR your shipping address is within the Greater Toronto Area. (GTA)
If you are outside the GTA and require shipping or simply having issues processing the purchase online, please contact us directly to complete: look@eurolite.com
Please know we are doing our best to rectify this issue but due to the nature of our unique products, the logistics for automatic calculations on the website is currently apart of a bigger program fix. We are working on it and hope to have things running smoother in the near future! Till then, contact us ~ Let us help you directly!
Purchase and Shipping options to the USA? We do sell and ship to the USA. Please contact us directly to complete your purchase: look@eurolite.com




